|
|
產品列表 | Products
螺旋葉片冷軋機的安裝步驟
螺旋葉片冷軋機是專業生產連續螺旋葉片的冷軋機,分為機械式和液壓式兩種,不同的機型,安裝方法也不太相同,共同之處是都需要8×8m的空間。下面介紹一下螺旋葉片冷軋機的安裝步驟以及開機前的注意事項:

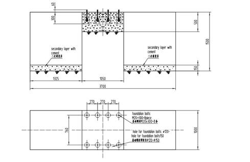
1、機械式螺旋葉片冷軋機安裝前,需要先挖基坑。先將主機底座處用水泥澆灌,澆灌前要把地腳螺絲按照尺寸擺放,使其凝固與水泥中。凝固之后安裝主機,主機安裝之后,地坑內再進行二次澆灌;
2、將四條地腳螺絲(M20×500mm)按照安裝尺寸預留在硬化層中,水平面以上留有可安裝兩個螺帽的長度;
3、地面完全硬化凝固后,對螺旋葉片主機進行安裝,進行校平處理后,固定好地腳螺栓;
4、按照安裝尺寸對放料架、成品收集料架、液壓剪、配電操作柜進行安裝;
5、接通設備電源線,并空轉電機檢查電機轉動方向;
6、檢查設備的水路、油路運行正常,螺旋葉片冷軋機方可正常生產。
